Продам нежилое помещение. ЖК Вернисаж (№ 2-310-632)
Ціна: 91 250 $

Адреса: Костанди ул., Одеса, Одеська, Київський, Таїрова
Характеристики
| Ціна: | 91 250 $ |
|---|---|
| № об'єкта: | 2-310-632 |
| Тип: | нежиле приміщення в житловому будинку |
| Площа: | 98,1 м2 |
| Кабінетів: | 4 |
| Поверх: | 1 / 14 |
Опис
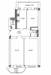
Продаж нежитлового приміщення. Центр Таїрова. Кастанді/АК. Корольова, ЖК Вернисаж.1/14, цегляний будинок, 74 кв.м., 4 кімнати: 25 кв.м., та 23,7 кв.м.,, можна об'єднати, 13,2 кв.м., та 12 кв.м. також є можливість об'єднати, 2 санвузли, хол 10 кв.м. Висота приміщень 3 метри. Фасад 2 вікна. Ідеально під стоматологію, магазин, аптеку, салон краси, офіс. ОСББ.
Продажа нежилого помещения. Центр Таирова. Кастанди / АК. Королева, ЖК Вернисаж.1/14, кирпичный дом, 74 кв.м., 4 комнаты: 25 кв.м., и 23,7 кв.м.,, можно объединить, 13,2 кв.м.,и 12 кв.м. также есть возможность объединить, 2 санузла, холл 10 кв.м.. Высота помещений 3 метра. Фасад 2 окна. Идеально под стоматологию, магазин, аптеку, салон красоты, офис. ОСМД.






