Продам 1 комнатную квартиру. Черемушки / Таирова. ЖК Успех (№ 213-168-363)
Ціна: 58 000 $

Адреса: Небесной Сотни проспект (Маршала Жукова), 3а, Одеса, Одеська, Київський, Таїрова
Характеристики
| Ціна: | 58 000 $ |
|---|---|
| № об'єкта: | 213-168-363 |
| Кімнат: | 1 |
| Поверх: | 15 / 16 |
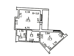
| Площа: | 42,3 / 17,5 / 11,7 м2 |
| Балкон: | лоджія |
| Стан: | Евроремонт |
| Програми / Ваучер / Сертифікат: | + |
Опис
Продаж 1 кімнатної квартири на початку Таїрова. Небесної Сотні (Маршала Жукова) / ЖК Успіх, 43 м2. Новий дім. червона цегла, стелі 3 метри, закрита територія, підземний паркінг (використовується як бомбосховище). Капремонт, кондиціонер, біметалеві радіатори. Лоджія засклена. Південна сторона, вікна у тихий двір. Відмінна інфраструктура, Поруч школа 63, кілька дитячих садків, Супермаркети: АТБ, Таврія, Сільпо. ТРЦ Сіті-Центр, ринок. Чудова транспортна розв'язка. 15 хвилин пішки парк Горького!
Продажа 1 комнатной квартиры в начале Таирова. Небесной Сотни (Маршала Жукова) / ЖК Успех, 43 м2. Новый дом. красный кирпич, потолки 3 метра, закрытая территория, подземный паркинг (используется как бомбоубежище). Капремонт, кондиционер, биметаллические радиаторы. Лоджия застеклена. Южная сторона, окна в тихий двор. Отличная инфраструктура, Рядом школа 63, несколько детских садов, Супермаркеты: АТБ, Таврия, Сильпо. ТРЦ Сити-Центр, рынок. Отличная транспортная развязка. 15 минут пешком парк Горького!
















