Продам 1к квартиру на Таирова. ЖК Акварель 2 (№ 213-123-444)

Ціна: 37 000 $
Характеристики
Ціна: | 37 000 $ |
---|---|
№ об'єкта: | 213-123-444 |
Кімнат: | 1 |
Поверх: | 4 / 17 |
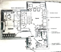
Площа: | 43,4 / 14 / 21 м2 |
Балкон: | лоджія |
Стан: | Незавершений |
Адреса: Одеська, Одеса, Київський, Таїрова, Жемчужная
Продаж однокімнатної квартири в Ж/К Акварель 2. Кухня студія 21 кв.м., спальня 14 кв.м. Загальна площа 43,4 кв.м. Незавершений ремонт. Зроблено проведення труб, встановлено інсталяцію, електропроводку, прокладено магістраль під кондиціонер., стіни підготовлені під шпалери. Куплена плитка. Засклена лоджія. Закрита територія, повна автономія, впорядкована територія, консьєрж, охорона, відеоспостереження, паркування, подвір'я. Поруч Епіцентр, Метро та Чорноморський ринок. До моря їхати 15 хвилин
Продажа однокомнатной квартиры в Ж/К Акварель 2. Кухня студия 21 кв.м., спальня 14 кв.м.. Общая площадь 43,4 кв.м. Незавершенный ремонт. Сделана проводка труб, установлена инсталяция, электропроводка, проложена магистраль под кондиционер., стены подготовлены под обои. Куплена плитка. Застеклённая лоджия. Закрытая территория, полная автономия, благоустроенная территория, консьерж, охрана, видеонаблюдение, парковка, двор. Рядом Эпицентр, Мэтро и Черноморский рынок. К морю ехать 15 минут