Продам 2 комнатную в новом доме с АГВ на Таирова. Ак. Королева (№ 212-888-577)
Ціна: 54 500 $

Адреса: Инглези (25 ой Чапаевской Дивизии), 2, Одеса, Одеська, Київський, Таїрова
Характеристики
| Ціна: | 54 500 $ |
|---|---|
| № об'єкта: | 212-888-577 |
| Кімнат: | 2 розд |
| Поверх: | 11 / 12 |
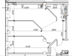
| Площа: | 64 / 29 / 18 м2 |
| Стан: | Від будівельників |
Опис
Продаж 2 кімнатної квартири, Інглезі (25 Чапаєвської див.) / Ак. Корольова. Початок Таїрова. ЖК ВІА Рома, новий комплекс бізнес класу, 11/12 пов, 64 кв.м. загальної площі, кімнати 15+14, кухня їдальня 18 кв.м., можна перепланувати на кухню-студію 35 кв.м. + спальню 15 кв. + вбиральня. Індивідуальне опалення, газовий котел встановлений, енергозберігаючі вікна, товщина стін 40 см, ціна дешевша за забудовника, стан від будівельників, будинок зданий. Броньовані двері високого класу, енергоефективні вікна, 6-камерний профіль KBE70ST, зелений двір без авто, ліфт з підземного паркінгу. У пішій доступності від комплексу розташовані кілька шкіл та дитячих садків, супермаркет. Одеський коледж комп'ютерних технологій. Чудова транспортна розв'язка.
Продажа 2 комнатной квартиры, Инглези (25 Чапаевской див.) / Ак. Королева. Начало Таирова. ЖК ВИА Рома, новый комплекс бизнес класса, 11/12 эт,, 64 кв.м. общей площади, комнаты 15+14, кухня столовая 18 кв.м., можно перепланировать в кухню -студию 35 кв.м. + спальню 15 кв.м. + гардеробная. Индивидуальное отопление, газовый котел установлен, энергосберегающие окна, толщина стен 40 см, цена дешевле застройщика, состояние от строителей, дом сдан. Бронированные двери высокого класса, энергоэффективные окна, 6 камерный профиль KBE70ST, зеленый двор без авто, лифт из подземного паркинга. В пешей доступности от комплекса расположены несколько школ и детских садов, супермаркет. Одесский колледж компьютерных технологий. Отличная транспортная развязка.






