Продам двухкомнатную в новом кирпичном доме. Центр Таирова. ЖК Вернисаж (№ 212-182-357)
Ціна: 68 000 $

Адреса: Костанди ул., 162, Одеса, Одеська, Київський, Таїрова
Характеристики
| Ціна: | 68 000 $ |
|---|---|
| № об'єкта: | 212-182-357 |
| Кімнат: | 2 розд |
| Поверх: | 3 / 14 |
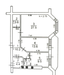
| Площа: | 73 / 41 / 10 м2 |
Опис
Продажа двухкомнатной квартиры с ремонтом в ЖК Вернисаж. Ул. Костанди / Академика Королева. 3 этаж, красный кирпич, 73.2 кв.м. Отличная планировка, санузел раздельный. Две раздельные комнаты, гардеробная, большой балкон на кухню и спальню, счётчик на отопление. Закрытый двор без авто, подземный паркинг. Дом утеплен снаружи. В шаговой доступности поликлиники для детей и взрослых. Рядом 2 школы, детский сад, супермаркеты, рынки. ОСМД с минимальными тарифами !!!Реальным покупателям хороший торг












