Продам новый дом Центр Таирова. Академика Королева / Левитана (№ 22-406-679)
Ціна: 289 000 $

Адреса: 13 Линия Люстдорфской дороги, Одеса, Одеська, Київський, Таїрова
Характеристики
| Ціна: | 289 000 $ |
|---|---|
| № об'єкта: | 22-406-679 |
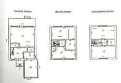
| Тип: | будинок |
| Поверхів: | 3 |
| Спалень: | 4 |
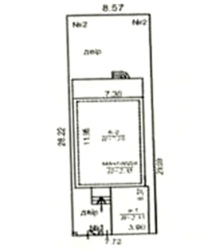
| Площа будинку: | 252 м2 |
| Ділянка: | 3 сот |
| Стан: | Евроремонт |
| Додатково: | гараж |
Опис
Продаж окремого будинку в Київському районі Одеси. Центр Таїрова. Академіка Корольова / Левітана. 252 м2, 3 рівні, 4 спальні, 3 санвузли, велика вітальня 41 м2 із зоною кухні, панорамними вікнами, виходом на терасу та задній двір. Ремонт робили для себе, закінчили шість місяців тому, ще ніхто не жив. Дорогі оздоблювальні матеріали, високі стелі. Всі меблі масив натурального дерева, вбудована кухня, техніка, кондиціонери. Будинок з аероку 40 см, додатково утеплений аероком 10 см, автоматизована система опалення, котел Арслан 24 кВт, споживання газу до 250 кубів (2000 грн на місяць). Будинок введений в експлуатацію, понад 3 роки. Держакт на землю, усі комунікації. Мiсце для вiдпочинку в саду з зоною BBQ. Гараж. Відмінне розташування, центр мікрорайону, поряд супермаркет, поліклініка, зупинка громадського транспорту у пішій доступності ринки, ТРЦ, бювет, сквер.
Продажа отдельно стоящего дома в Киевском районе Одессы. Центр Таирова. Академика Королева Левитана. 252 м2, 3 уровня, 4 спальни, 3 санузла, большая гостиная 41 м2 с зоной кухни, панорамными окнами, выходом на террасу и задний двор. Ремонт делали для себя, закончили 6 месяцев назад, еще никто не жил. Дорогие отделочные материалы, высокие потолки. Вся мебель массив натурального дерева, встроенная кухня, техника, кондиционеры. Дом из аэрока 40 см, дополнительно утеплен аэроком 10 см, автоматизированная система отопления, котел Арслан 24 кВт, потребление газа до 250 кубов (2000 грн в месяц). Дом введен в эксплуатацию, более 3х лет. Госакт на землю, все коммуникации. Беседка c зоной BBQ. Гараж.Отличное расположение, центр микрорайона, рядом супермаркет, поликлиника, остановка общественного транспорта в пешей доступности рынки, ТРЦ, бювет, сквер.



























